KYN28-12 New armored removable AC Metal-clad switchgear

Overview:

The HXGN-12 high-voltage switchgear is a box-type, fixed, metal-enclosed switchgear, suitable for industrial and mining enterprises with an AC frequency of 50Hz and a rated voltage of 3-10kV, used for three-phase single busbar power transformers and distribution systems. It is used for receiving and distributing electrical energy, as well as for circuit control, protection, and monitoring.

The HXGN-12 indoor high-voltage ring main unit and high-voltage switchgear have excellent arc-extinguishing performance. To quickly extinguish the arc, when the switch opens during the current-breaking process and the moving and stationary contacts just separate, an arc is generated. At this moment, due to the magnetic field’s influence, the arc is rapidly driven to move, stretching the arc and continuing to interact with SF6 gas, which quickly dissociates and cools, extinguishing the arc when the current crosses zero. The double-breaking distance has the insulation level of an isolation gap. Using the principle of permanent magnetic rotating arc, the switch requires low operating power, has strong arc-extinguishing capability, and features small, lightweight contacts, thus extending electrical lifespan.

Working Conditions:

  • Ambient air temperature: maximum temperature +40℃, minimum temperature -15℃;
  • Relative humidity: daily average relative humidity: ≤ 95%, daily average water vapor pressure does not exceed 2.2KPa;
  • Monthly average relative humidity ≤ 90%; monthly average water vapor pressure does not exceed 1.8KPa;
  • Altitude: ≤ 1000m;
  • Earthquake intensity: not more than 8 levels;
  • The surrounding air should not be obviously polluted by corrosive or flammable gases, water vapor, etc.;
  • No place with severe vibration;

When used under normal conditions beyond those specified in GB3906, the user and the company shall negotiate.

Technical Parameters of HXGN-12:

Project Parameter
Rated voltage 3.6kv, 7.2kv, 12kv
Rated frequencey 50hz
Circuit breaker rated current 630A、1250A、1600A、2000A、2500A、3150A、4000A
Switchgear rated current 630A、1250A、1600A、2000A、2500A、3150A、4000A
Rated short-time withstand current 20kA、25kA、31.5kA、40kA
Rated peak withstand current (peak) 50kA、63kA、80kA、100kA
Rated short-circuit breaking current 20kA、25kA、31.5kA、100kA
Rated short-circuit making current (peak value) 50kA、63kA、80kA、100kA
Rated insulation level 1min power frequency withstand voltage 24kV、32kV、42kV
24kV、32kV、42kV
Lightning impulse withstand voltage (peak value) 40kV、60kV、75kV
46kV、70kV、85kV
Protection Level The shell is IP4X, IP2X when the compartment and circuit breaker chamber door is open.

Primary Typical Line Plan:

Description of Center Switchgear Structure:

The switchgear consists of two major parts: the switchgear body and the central removable component (i.e., the trolley) (see Figure 2). The switchgear body is divided into four separate compartments, with a shell protection level of P4X. The protection level of each compartment and the circuit breaker room door is P2X when it is open. It has overhead inlet and outlet lines, cable inlet and outlet lines, and other functional solutions. After arrangement and combination, it can become a distribution device in various forms. This switchgear can be installed, debugged, and maintained from the front, so it can be double-arranged back to back and installed against the wall, which improves the safety and flexibility of the switchgear and reduces the floor space.

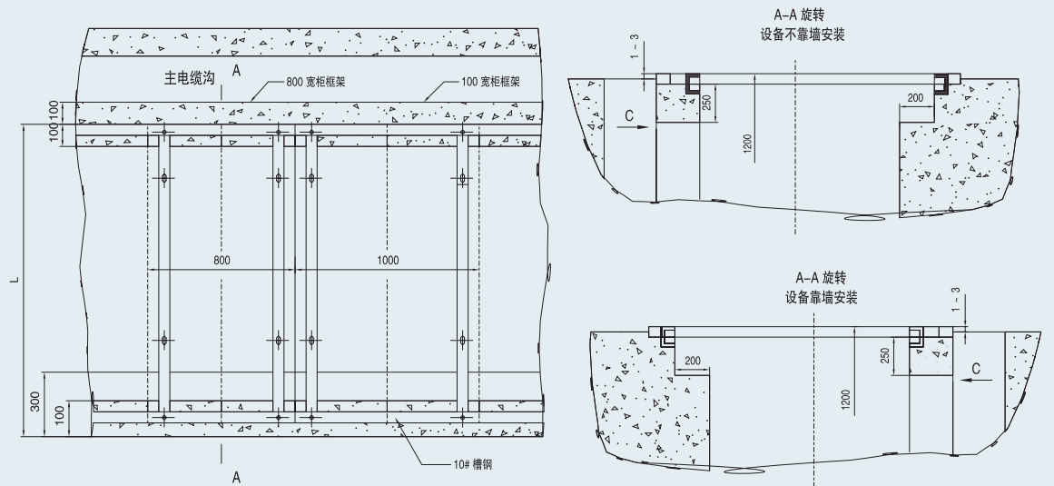
Installation diagram of Switchgear:

 

Request an Instant Quote for Your Projects!

If you didn’t know which switchgear system that used to your present project, it’s time to speak to our Industry Experts-Kimball. We’re glad to answer any questions you may have!

What our clients say

”From planning to delivery, it has been a smooth and gratifying transaction. The Dongshenyuan Electric team is quickly responsive, and the quality of DSY Switchgear are top-grade! In the end, they deliver as promised, and more. We look forward to a long-term partnership with them.”

Anurag Tyagi

Download Catalogue!

Download our catalog to see all products and data sheets, the catalog sheet will be automatically sent to your email address.

Get In Touch Now!

*We respect your confidentiality and all information is protected.